Á¦Ç°¼Ò°³

âÀÇÀûÀÌ°í °¨°¢ÀûÀÎ µðÀÚÀÎÀ¸·Î º¸´äÇÏ´Â ºñÁö´Ï½º ÆÄÆ®³Ê°¡ µÇ°Ú½À´Ï´Ù.

LED ½Ç³»Á¶¸í

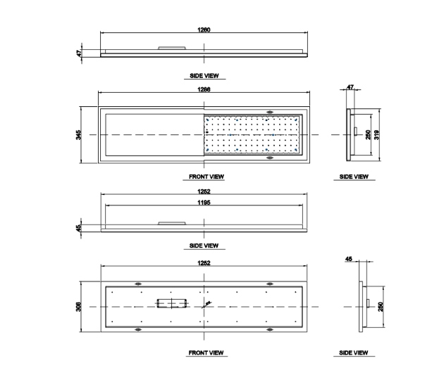
ÆòÆÇ¸ÅÀÔ M-BAR 1200*300 (B-TYPE)

Á¦Ç°»ç¾ç

¡Ø Á¦Ç°ÀÇ Å¸°ø»çÀÌÁî´Â ¹Ýµå½Ã ´ã´çÀÚ¿¡°Ô È®ÀÎ ºÎʵ右´Ï´Ù.
Ç¥¸¦ ÁÂ,¿ì·Î µå·¡±× ÇØÁÖ¼¼¿ä.
¸ðµ¨¸í ¼ÒºñÀü·Â(W) Á¦Ç°ÀÎÁõ Àü±âÀüÀÚÆÄ
ÀûÇÕµî·Ï¹øÈ£
Á¶´Þû
¹°Ç°½Äº°¹øÈ£
ÃʱⱤ¼Ó(lm) ±¤È¿À²(lm/W) »ö¿Âµµ(K) ¿¬»ö¼º(Ra) Ãâ·ÂÀü¾Ð(V) ºñ°í
ESL-50ML1230K57 50 KS,°íÈ¿À² R-R-esl-ESL-5045ML-5L - 5888 125.6 5700 83.2 45 ¹é»öÅ×



TOP