Product

Your creative business partner, Eunsung Lighting Co,. Ltd.

INDOOR LED LIGHT

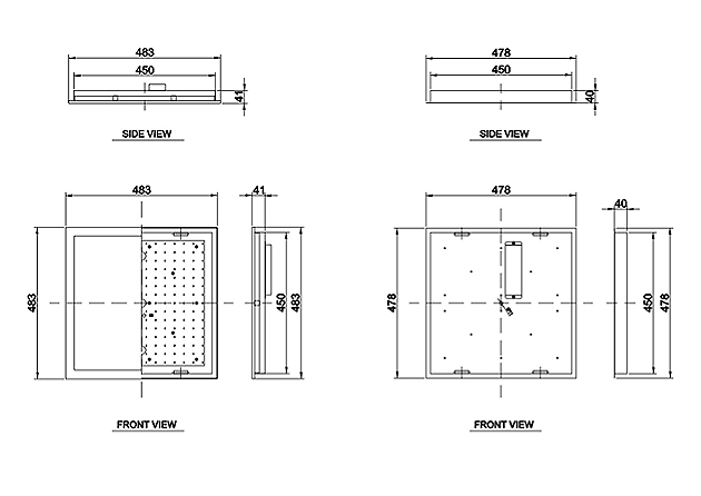
RECESSED PANEL LIFHT (M-BAR) 450*450

Product specification

¡Ø Please you should be checked a cut size before you construct.
Ç¥¸¦ ÁÂ,¿ì·Î µå·¡±× ÇØÁÖ¼¼¿ä.
MODEL NO. POWER
CONSUMPTION(W)
Luminous
Flux(lm)
LUMINOUS
EFFICIENCY(lm/W)
LIGHT COLOR(K) CRI(Ra) OUTPUT
VOLTAGE(V)
REMARKS
ESL-60ML4545K57 60 6468 117 5700 82.8 45 WHITE FRAME
ESL-40ML4545K57 40 4658 119.1 5700 82.8 45 WHITE FRAME



TOP